NTU Mimarlık tarafından geliştirilen Beyoğlu Kagir Otel Restorasyon Projesi, tarihi dokuyu koruyarak yapıya çağdaş bir işlev kazandırmayı amaçlamaktadır.

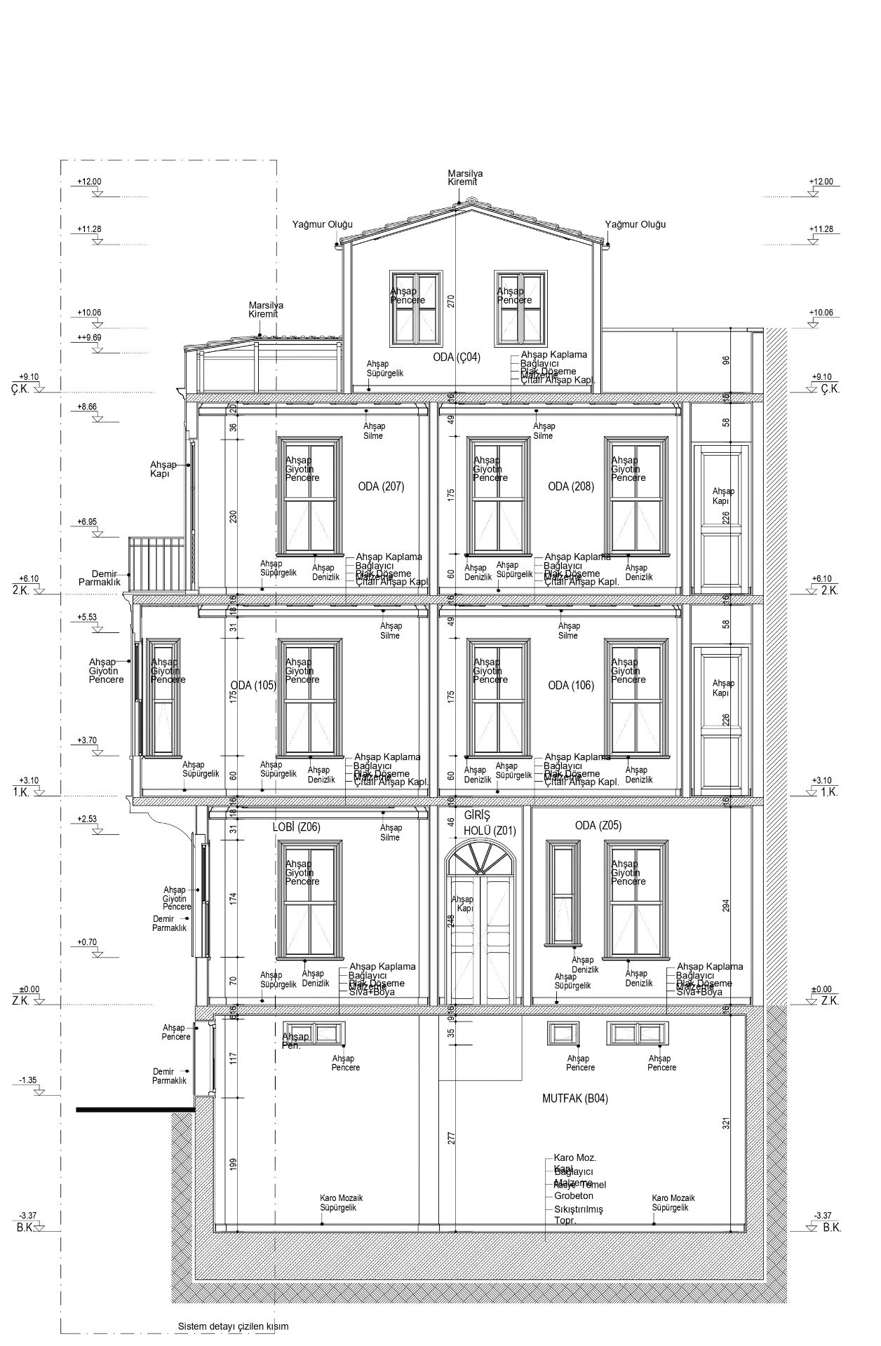
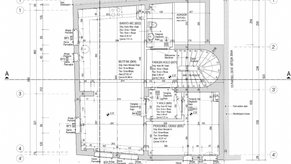
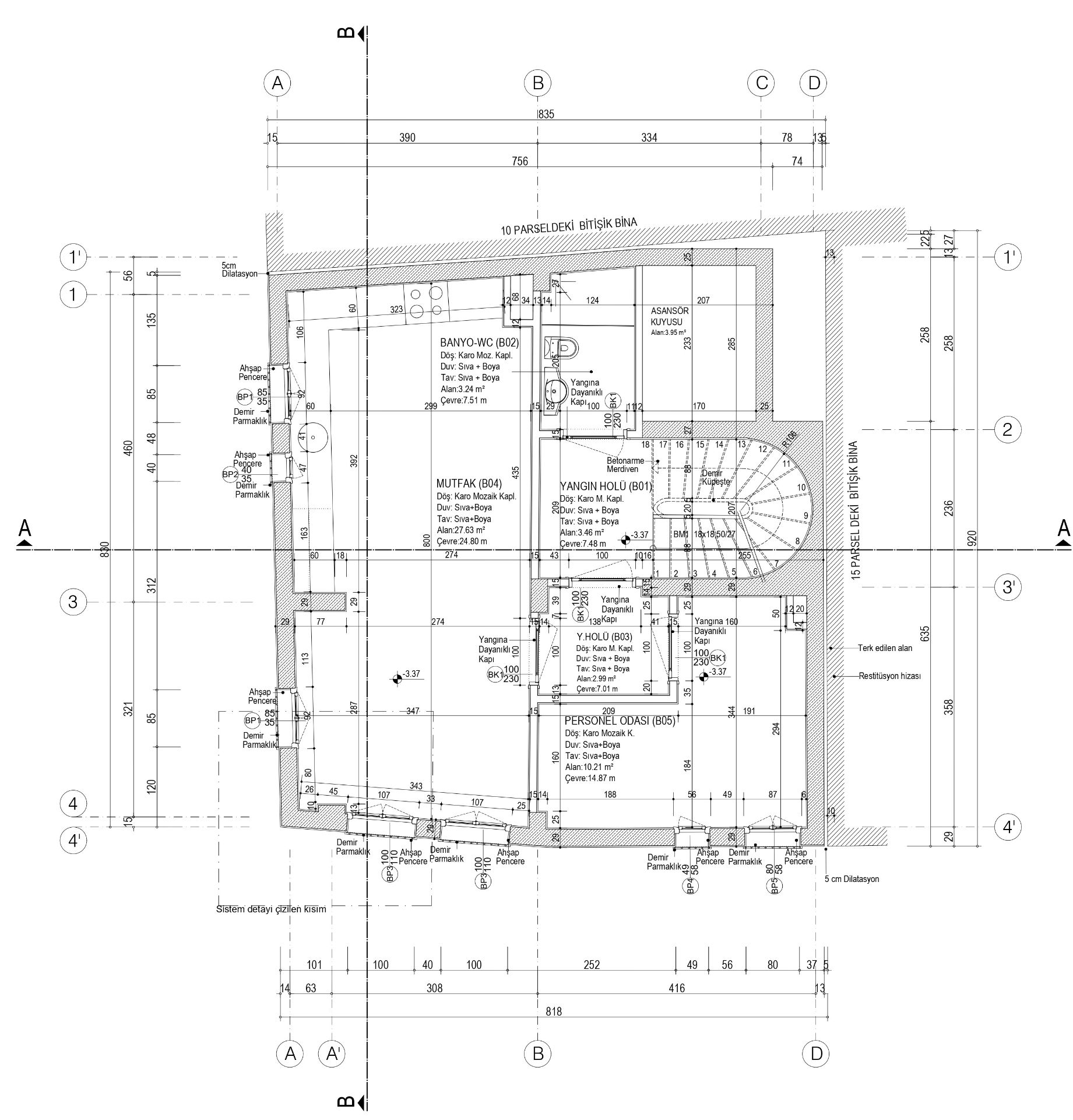
Beyoğlu’nda yer alan tarihi kagir yapının otel olarak yeniden işlevlendirilmesi için NTU Mimarlık tarafından kapsamlı bir rölöve, restitüsyon ve restorasyon çalışması yürütülmüştür. Proje kapsamında yapının özgün mimari öğeleri korunmuş, bozulmuş kısımlar aslına uygun şekilde onarılmış ve modern kullanım ihtiyaçlarına cevap verecek düzenlemeler yapılmıştır.

Tarihi kimliğin korunması ile çağdaş konaklama standartlarının buluşturulduğu tasarım, hem mimari mirasın yaşatılmasına hem de kente yeni bir turizm değeri kazandırılmasına katkı sağlamaktadır.